Loft Conversion Bennetts Road, Sutton Coldfield
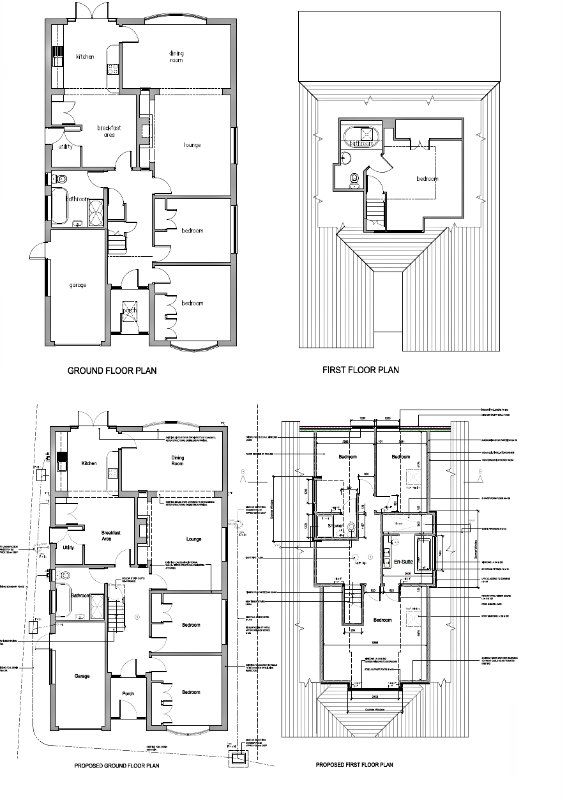
This tastefully designed loft conversion in Sutton Coldfield, Birmingham has transformed this bungalow by adding on a spacious master bedroom with walk in wardrobes and an en-suite bathroom. A further two bedroom, shower room and large gallery landing have also been added transforming the three bedroom bungalow to a five bedroom dwelling.
Design & Planning Process
Buckley Loft Conversions surveyor visited this client on various occasions to discuss their expectations and ideas of what they wanted to achieve with their loft conversion, in their beautiful West Midlands family home. On the initial visit the client’s informed buckley’s on exactly what they wanted to achieve from this loft conversion gaining more bedrooms was a must as they were expecting a child and also creating it to be the perfect forever family home. The loft conversion itself consisted of dormer windows and incorporating velux roof lights which all fell under the “permitted development rights”. This achieved the light and spacious bedrooms & landing they wanted and avoided the need to go through the planning process. Once everything was decided and agreed, it was then passed to our in house architect who then went on to create the front elevation, the rear elevation and the floor plans. Once completed the proposed drawings were sent to Birmingham City Council, to confirm that planning permission was not needed, once this has been agreed we could then go on to build this loft with building regulations approval only. For more information on planning please visit our Planning & Construction Page
Construction Process
The Client’s loft had already been cleared in preparation for the loft conversion to start. The carpenters then came in to the loft to start the insulation process, removing beams and replacing with stud work to separate all of the bedrooms and en-suite bathrooms. The Velux loft windows & dormer were constructed into the client’s existing roof creating bright & spacious rooms. The dormer was constructed using some of the existing roof tiles & new tiles along with EPDM rubber roofing for the flat roof. A sun tunnel was installed on the clients new landing area these add natural daylight to indoor spaces in ways that a simple lamp can’t and where windows cannot be installed for more information on different kind of Velux windows please see the Velux Website. Once the structure of the loft conversion was in place it then started being prepared for the installation of the bespoke staircase, which was manufactured by Buckley’s in house joiners and completed in the joinery workshop alongside the clients ideas and designs in Cannock, Staffordshire.
Conversion Complete
Once the construction team had finished building the loft conversion, the joiners have fitted their bespoke staircase, the plasterers have been, the electricians have fitted all of their sockets and fittings & the plumber had fitted all of their new en-suite bathroom, the clients were then able to go into their conversion and start planning their decorating, carpet colors & bedroom furniture etc. Once completed the clients were absolutely over the moon and sent over some photos of their new conversion, as you can see from the photographs below this is truly a great loft conversion in Birmingham, West Midlands creating that family home they wanted.
Above photographs show the completed loft conversion rooms, a master bedroom with a stunning en-suite bathroom, a girls & boys bedroom with the dormer windows & velux roof light.
Above photographs show the completed loft conversion gallery landing area & bespoke staircase with the incorporated Velux sun tunnel.
Above photographs show the completed loft conversion exterior of the property from the font and back, also the added walk in wardrobe area in master bedroom utilizing every space possible.
For more information/quotation on getting a loft conversion see our contact page or call us on 01543 469 996.




Connect with us: