Stafford Bungalow Loft Conversion
…………. Starts this week in Parkfields, Stafford!
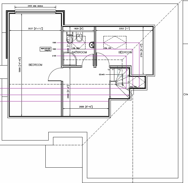
Proposed Loft Conversion Floor Plan Below>
A rear dormer will be constructed and Velux Rooflights will be installed on this bungalow creating a spacious landing, two bedrooms and a bathroom as shown in the plan below.
Written by Rachael Nolan on behalf of Buckley loft conversions, for more information on Loft Conversions in Stafford – Take a look at our Stafford Loft Conversions Page >

Connect with us: