Loft Conversion Bennetts Road, Sutton Coldfield
Mr & Mrs Bennett of Sutton Coldfield were the second prize winner that won the Elemis facial set in the photograph event of 2015.
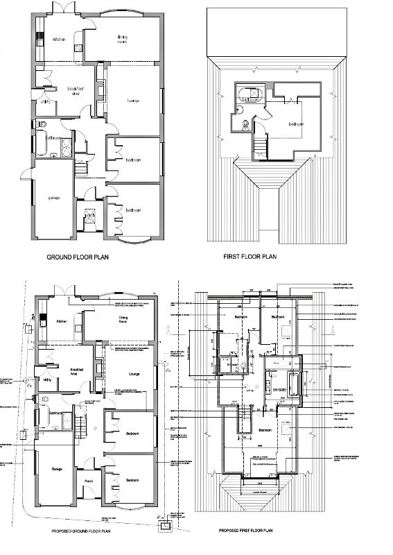
This tastefully designed loft conversion in Sutton Coldfield has transformed this bungalow by adding on a spacious master bedroom with walk in wardrobes and an en-suite bathroom. A further two bedroom, shower room and large gallery landing have also been added transforming the three bedroom bungalow to a five bedroom dwelling.
Bungalow Loft Conversion Plans
You can see from the plans the loft conversion the original
Master Bedroom, Walk In Wardrobes and En-suite
Look at this great master bedroom.
Children’s Bedroom and Nursery
This loft conversion has created great spacious bedrooms for the family, take a look at the pretty girls bedroom and nursery pictures below.








Connect with us: